路面清掃の効率化を実現/建機用アタッチメント「RBシリーズ」導入へ/清輝建設
清輝建設(上村清俊社長)は、舗装面や路面の清掃作業を大幅に省力化するSlanetrac社製のミニディガー用アタッチメント「RBシリーズ(舗装クリーナー)」の本格導入を開始した。 従来の路面清掃は、特にインターロッキング

ピックアップ


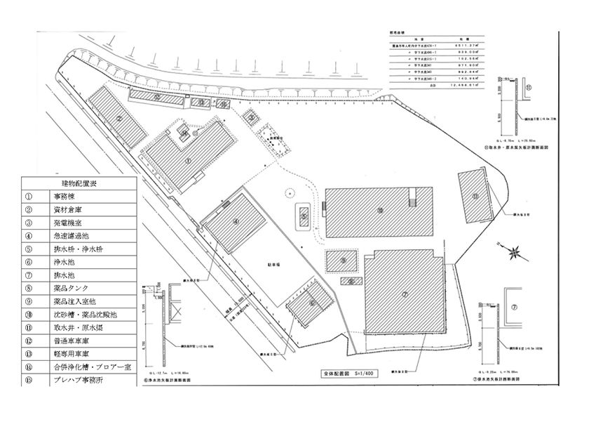
霧島市は大津浄水場跡地を建物等の解体撤去と土地の利活用を条件として売却する。公募型プロポーザル方式により売却先を選定。民間事業者からの企画提案を総合的に審査する。9月から公募を開始して12月に一次審査を実施して優先交渉権者を決定。2027年1、2月に住民説明会を行い、同3月の契約締結や引き渡しを予定する。 住所は霧島市隼人町内341外で、敷地面積は1万2458・61㎡(地目・水道用地839㎡、宅地1万1619・61㎡)。都市計画区域内で用途地域は準住居地域と第1種居住地域。建ぺい率は60%で容積率は200%。既存建物は事務棟や資材倉庫、薬品庫のほか排水池や浄水池など。今後、現地のアスベスト事前調査や地歴調査、土地確定測量を予定する。 参加資格として、同市の入札参加資格や法人格などを求める。事業評価項目には実現性や事業効果、環境保全を設ける。10月に参加申込書の受け付けを行い、11月に企画提案書を受け付ける。 問い合わせは、上下水道総務課政策グループ(℡0995・42・3518)まで。
清輝建設(上村清俊社長)は、舗装面や路面の清掃作業を大幅に省力化するSlanetrac社製のミニディガー用アタッチメント「RBシリーズ(舗装クリーナー)」の本格導入を開始した。 従来の路面清掃は、特にインターロッキング
岩﨑電設(岩﨑憲二社長)は4月から、地元高校の新卒者を含む新入社員3人を迎え入れた。地元新卒者の採用は2019年以来7年ぶり。地域インフラの担い手としての期待を込め、業務をスタートしている。 今回入社したのは、出水工業

県内の高規格幹線道路の整備のうち、本県関係の4道路には134億5000万円を投入する。南九州西回り自動車道の阿久根川内道路では、阿久根市と薩摩川内市側に続き、3区間目となる湯田西方で工事に入るほか、東九州自動車道の日南・
県産業資源循環協会姶良・伊佐支部(長谷重昭支部長)の2026年度通常総会が16日、霧島市のホテル京セラであった。不法投棄の防止徹底や産業廃棄物適正処理の推進などを柱とする新年度事業計画を承認。任期満了に伴う役員改選では、

三島村の2026年度一般会計当初予算は、総額22億2240万4000円で前年度当初比11・2%(2億2890万1000円)の増となった。しおかぜ留学推進費(工事請負費2億円)は宿舎を単年度で整備。畜産振興費(同1億357

県学校施設課は、2026年度県立学校施設整備の事業概要を明らかにした。特別支援学校の工事発注が本格化。曽於や指宿、中種子で校舎等の整備に向け当初予算に債務負担行為を計上、伊佐・湧水では実施設計に入る。また、校舎改築で加治

県は、2025年8月豪雨災害の復旧状況を明らかにした。災害箇所数344カ所(169億3000万円)のうち、262カ所(76.2%)で契約(3月末)。また、網掛川(姶良市加治木町)は災害復旧関連事業に採択された。 工種

十島村の2026年度一般会計当初予算は、前年度当初比2.6%(1億714万5000円)増の41億3879万7000円となった。工事請負費7億5000万円で小宝島港などの港湾施設を改良するほか、同2億4680万円で諏訪之瀬

十島村の2026年度簡易水道特別会計当初予算は、収益的支出1億489万5000円、資本的支出8668万3000円の計1億9157万8000円となった。前年度当初比8.6%(1522万8000円)の増。中之島で配水管布設や

サーパスいづろ管理組合は、同マンション=写真=の大規模修繕に関する施工業者を募集する。提出書類等を5月15日まで郵送で受け付ける。設計・監理はM・design(エム・デザイン)が担当。 所在地は、鹿児島市泉町15-1

新しい働き方の一つに「建設ディレクター」が注目を集めている。ICTやコミュニケーションスキルを生かし現場をサポートする新しい職域だ。これまで全6回にわたり、全国の企業を紹介してきた。今回、県内版として3社(全3回)を取り

ちょうど1年前、大隅河川国道事務所への異動を命じられた。これまで県内はおろか九州地方での勤務経験すら無かった。自宅からも遠い見知らぬ土地で、知り合いもほとんどいない中、「仕事ができるだろうか」と大きな不安を抱えたまま着任

◆富士建設工業とグリップメソッド 鹿屋市の富士建設工業と鹿児島市のグリップメソッドは、県に代表者変更届けを提出した。新しい代表者は、富士建設工業が岩田公平氏、グリップメソッドは大原剛毅氏が就任した。

◆西元北之園建設(鹿児島市) 1日付けで、代表取締役に喜山裕也氏が就任した。前任の松里夏美氏は取締役に就いた。

私は中学生時代、電気に対して好きな気持ちや拘りはなく、ただ「なんとなく」の気持ちで川内商工高校電気科に入学しました。専門分野の授業や実習を受けると今までやったことがないことばかりで、電気に大きな興味を持つようになりました

弊社大島支局での勤務が5年経つ。業界紙業務として土木や建築、設計など関係業界のことを一から学び、関係者の皆さまに教えを請い続ける日々が続く。 着任当初、まずは社名を覚えようと弊社発刊の『建設業者要覧』を手に取り、企業一覧

一流になるにはどうするか?その道のプロを徹底的に真似ることだ。趣味の世界であれ、仕事の世界であれ、目標とする人物のそばに寄り、観察する。まず形から入る。自分とどこが違うのかを探す。 ビジネス界でも一緒。名経営者と呼ば

前回は9割の中小建設業者が、人材不足であることをお伝えしました。今回はそれを踏まえて、中小建設業者の人材採用策について説明します。 まず、大前提として人材採用策に近道はありません。 聞こえの小手先の対策で人材を採用で

宮本武蔵について、直木三十五と菊池寛が対談した。その後見人が吉川英治だったそうだ。直木は武蔵は卑怯千万の荒芸者という。菊池は反論する。 その話から吉川英治が小説〝宮本武蔵〟を書き上げたという逸話を聞いた。武蔵は卑怯者で

吹上実総(有馬正貢社長、日置市)は現在の本社周辺に新社屋を整備した=写真=。W造2階建217㎡。19日に竣工・落成式を予定するほか、4月中にも機能を移す予定だ。 場所は吹上町中之里1495で、従業員用の休憩室や応接

県法面工事業連合会(福永勝男会長)の第16回通常総会が15日、鹿児島市のホテルレクストン鹿児島であった。任期満了に伴う役員改選では、福永会長(福永組)の続投を承認。離島を含む県下一円での陳情活動などを柱とする新年度事業計

県森林土木協会(小牧隆会長)の2026年度春期セミナーは2日目の16日、鹿児島市のマリンパレスかごしまであり会員事業所の技術職員ら68人が参加、地盤災害対策とコンクリート施工の在り方等に理解を深めた。 セミナーでは、

健康経営フォーラムは15日、アクサ生命保険鹿児島支社(西田圭司支社長)の主催で初めて開かれた。県内の優良法人認定企業から46社63人が参加、事例発表に耳を傾け相互交流を図るとともに、新たな支援策等に理解を深めた。 フ

日本健康会議(共同代表・小林健日本商工会議所会頭)が認定する健康経営に取り組む県内の優良認定法人から15日、南生建設(川畑智洋社長、鹿児島市)とヘイワ(横峯秀浩社長、志布志市)が、鹿児島市であった健康経営フォーラムで事例

長島町が発注し、ASODDO(有村太貴社長、鹿児島市)が設計・施工を進めていた「町単独サンセット風車モニュメント整備」がこのほど完成した。町内第1号として設置され、長年親しまれてきた風力発電の風車が、役目を終えたあとも地

徳之島町は、学校給食センター衛生保守管理業務委託に係る公募型プロポーザルを実施する。質問は22日まで、企画提案書は24日まで、それぞれ受け付ける。 業務内容は、①自動噴霧器による殺菌処理②微生物検査③害虫駆除を行い、セ

県は、データ入力業務委託に係る一般競争入札の実施要領を公告した。参加資格申請書の提出は23日まで。 主な参加資格は、県の役務の提供等の入札参加資格を有するなど。業務内容は、データ入力12万9370件(漢字含む3万58

南九州市は、空き家を社員寮に活用したい市内事業者を対象に、改修経費の一部を補助する。応募期限は6月30日(正午)まで。7月中の事業採択を予定。2027年3月31日までに改修工事が完了できる事業を要件とする。 補助額は

あんしんエステート鹿児島(安田正人代表)は創業20年にあたり新たなサービス「現調MAN」を5月から開始する。売買募集や取引前での現況調査作業を補助。実務での人手不足を助ける。 測量資料がないケースなどでRTK方式によ

金利上昇に伴う自社事業に与える影響について、「マイナス影響が大きい」と感じている県内企業の業界別割合は、「不動産」が66.7%でトップとなり、「建設」が64.3%と6割台で続いていることが、帝国データバンク(TDB)鹿児
Kiss
Web会員になるとすべての内容を閲覧できます。
まずは1週間の無料体験にお申し込みください。
会員の方は
会員ページよりログインしてご覧ください。